1-407-575-5392
Menu

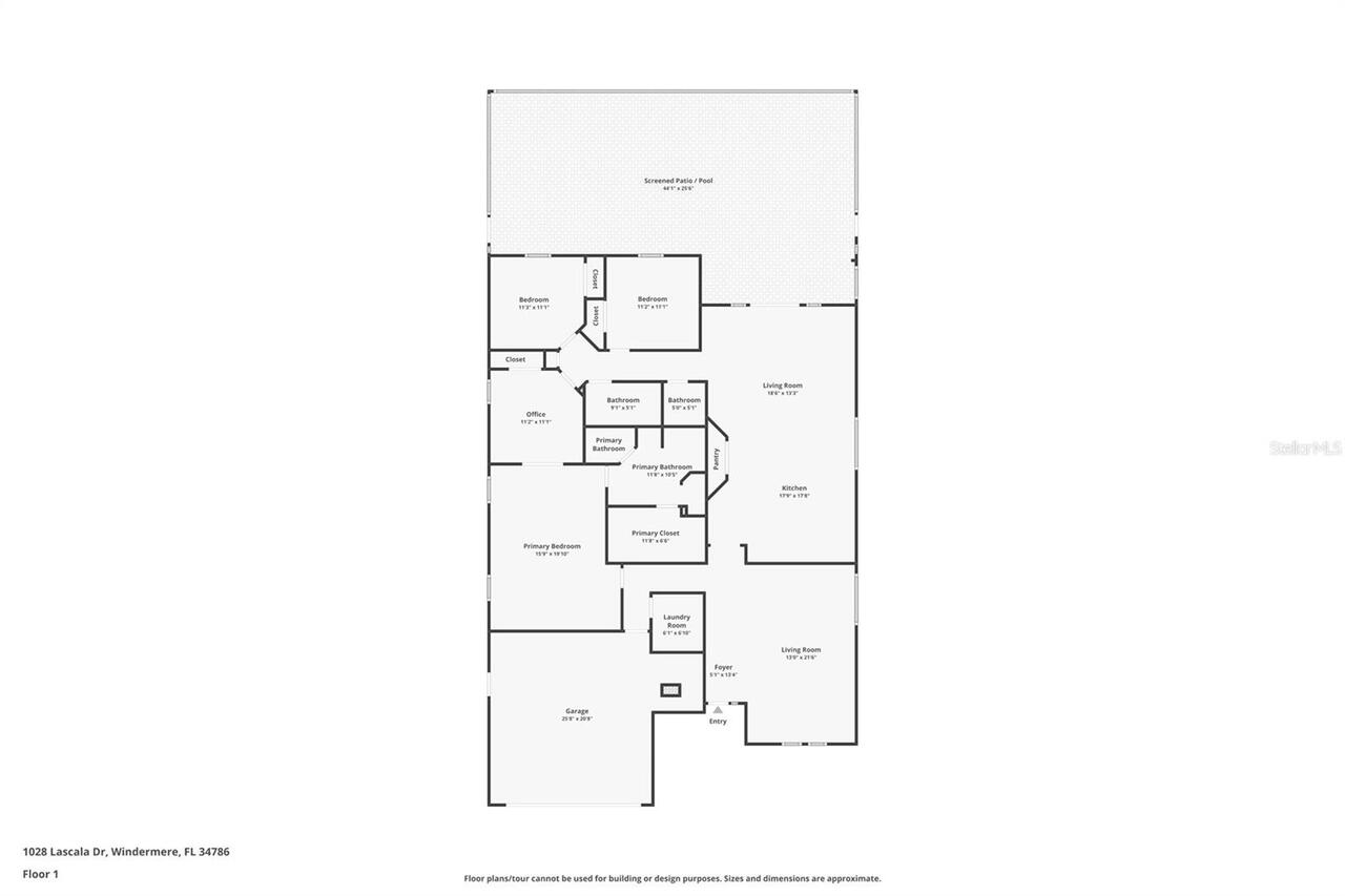
1028 Lascala Drive, Windermere, FL

NEXT
PREV
$749,000

($339/sqft)

List Status: Active
1028 Lascala Drive
Windermere, FL 34786


4 beds
2 baths
2208 living sqft
Top Features
  • View: Water
  • Subdivision: Belmere Village G2 48 65
  • Built in  2002
  • Single Family Residence
Description
Introducing an EXCEPTIONAL opportunity to own a RENOVATED WATERFRONT POOL residence in the prestigious, GATED community of Belmere. Meticulously maintained, this elegant single-story home embodies refined living with a seamless blend of comfort, style, and tranquility. Designed with a desirable split floor plan, the home offers both privacy and effortless flow. The heart of the home is a newly designed chef’s kitchen featuring a generous island, integrated WINE REFRIGERATION, designer hardware, and a sleek touchless faucet—perfectly suited for both intimate gatherings and upscale entertaining. The adjoining living spaces are enhanced by luxury vinyl plank flooring, while the bedrooms offer newer carpeting for added comfort. The primary suite is a private retreat, complete with a sitting area and an en-suite bath featuring dual vanities, a soaking tub, a separate glass-enclosed shower, and a custom walk-in closet with built-ins. Through elegant Pella French doors, step into your own FLORIDA sanctuary. A SCREENED-IN SALTWATER POOL with a NEW PUMP, expansive PAED DEK, and serene water views create an atmosphere of peace and exclusivity—ideal for embracing the Florida lifestyle. Additional enhancements include a whole-home Reme Halo UV air purification system and thoughtfully included built-ins such as a TV console and mount. Set within a sought-after community offering low HOA fees, exceptional amenities, and access to top-rated schools, this residence is ideally located near fine dining, upscale shopping, and world-renowned attractions. This is more than a home—it is a lifestyle of sophistication, comfort, and serenity. Private showings available for pre-qualified buyers. Experience the home anytime through the immersive 24-hour 3D
Property Details
Additional Information
Additional Lease Restrictions
Contact HOA
Additional Parcels YN
false
Alternate Key Folio Num
282231024301050
Appliances
Dishwasher, Disposal, Dryer, Gas Water Heater, Microwave, Range, Refrigerator, Touchless Faucet, Washer, Wine Refrigerator
Association Amenities
Basketball Court, Clubhouse, Fitness Center, Gated, Pickleball Court(s), Playground, Pool, Tennis Court(s)
Association Email
cborrero@sentrymgt.com
Association Fee
140
Association Fee Frequency
Monthly
Association Fee Includes
Pool
Association Fee Requirement
Required
Association YN
true
Attached Garage YN
true
Available For Lease YN
1
Bathrooms Total Integer
3
Building Area Source
Public Records
Building Area Total
2856
Building Area Total Srch SqM
265.33
Building Area Units
Square Feet
Calculated List Price By Calculated SqFt
339.22
Carport YN
false
Community Features
Clubhouse, Fitness Center, Gated Community - No Guard, Playground, Pool, Sidewalks, Tennis Court(s), Street Lights
Construction Materials
Block, Stucco
Cooling
Central Air
Country
US
Current Price
749000.00
Direction Faces
North
Elementary School
Lake Whitney Elem
Exterior Features
French Doors, Private Mailbox, Sidewalk, Sliding Doors, Sprinkler Metered
Fireplace YN
false
Flood Zone Code
X
Flood Zone Date
2021-09-24
Flood Zone Panel
12095C0220H
Flooring
Carpet, Ceramic Tile, Luxury Vinyl
Foundation Details
Slab
Furnished
Unfurnished
Garage Spaces
2
Garage YN
true
Heating
Central, Electric
High School
West Orange High
Homestead YN
1
Interior Features
Ceiling Fans(s), Eat-in Kitchen, High Ceilings, Kitchen/Family Room Combo, Primary Bedroom Main Floor, Split Bedroom, Thermostat
Internet Address Display YN
true
Internet Automated Valuation Display YN
true
Internet Consumer Comment YN
false
Internet Entire Listing Display YN
true
Laundry Features
Inside, Laundry Room
Lease Restrictions YN
1
Levels
One
List AOR
Orlando Regional
Living Area Meters
205.13
Living Area Source
Public Records
Living Area Units
Square Feet
Lot Features
Sidewalk
Lot Size Acres
0.15
Lot Size Square Feet
6380
Lot Size Square Meters
593
Middle Or Junior School
SunRidge Middle
Minimum Lease
7 Months
Modification Timestamp
2026-04-22T03:16:09.316Z
Monthly HOA Amount
140.00
New Construction YN
false
Occupant Type
Owner
Other Equipment
Irrigation Equipment
Ownership
Fee Simple
Parcel Number
31-22-28-0243-01-050
Pets Allowed
Yes
Pool Private YN
true
Postal Code Plus 4
6023
Public Survey Range
28
Public Survey Section
31
RATIO Current Price By Calculated SqFt
339.22
Road Surface Type
Asphalt
Roof
Tile
Room Count
7
Senior Community YN
false
Sewer
Public Sewer
Showing Requirements
Appointment Only, Call Listing Agent, Gate Code Required
Spa Features
In Ground
Spa YN
true
Status Change Timestamp
2026-04-22T03:05:47.000Z
Stories Total
1
Tax Annual Amount
8185.28
Tax Block
1
Tax Book Number
48/65
Tax Legal Description
BELMERE VILLAGE G2 48/65 LOT 105
Tax Lot
105
Tax Year
2025
Total Acreage
0 to less than 1/4
Total Annual Fees
1680.00
Total Monthly Fees
140.00
Township
22
Universal Property Id
US-12095-N-312228024301050-R-N
Unparsed Address
1028 LASCALA DR
Utilities
BB/HS Internet Available, Cable Available, Electricity Available, Fiber Optics, Natural Gas Available, Phone Available, Public, Underground Utilities, Water Available
Water Source
Public
Waterfront YN
false
Zoning
P-D
Neighborhood Map
Popup

Property Photos
Listing Photo
Listing Photo
Listing Photo
Listing Photo
Listing Photo
Listing Photo
Listing Photo
Listing Photo
Listing Photo
Listing Photo
Listing Photo
Listing Photo
Listing Photo
Listing Photo
Listing Photo
Listing Photo
Listing Photo
Listing Photo
Listing Photo
Listing Photo
Listing Photo
Listing Photo
Listing Photo
Listing Photo
Listing Photo
Listing Photo
Listing Photo
Listing Photo
Listing Photo
Listing Photo
Listing Photo
Listing Photo
Listing Photo
Listing Photo
Listing Photo
Listing Photo
Listing Photo
Listing Photo
Listing Photo
Listing Photo
Listing Photo
Listing Photo
Listing Photo
Listing Photo
Listing Photo
Listing Photo
Listing Photo
Listing Photo
Listing Photo
Listing Photo
Listing Photo
Listing Photo
Listing Photo
Listing Photo
Listing Photo
Listing Photo
Listing Photo
Listing Photo
Listing Photo
Listing Photo
Listing Photo
Listing Photo
Listing Photo
Listing Photo
Listing Photo
Listing Photo
Listing Photo
Listing Photo
Listing Photo
Listing Photo
Listing Photo
Listing Photo
Listing Photo
Listing Photo
Listing Photo
Listing Photo
Listing Photo
Listing Photo
Listing Photo
Listing Photo
Listing Photo
Listing Photo
Listing Photo
Listing Photo
Listing Photo
Listing Photo
Listing Photo
Listing Photo
Listing Photo
Listing Photo
Listing Photo
Listing Photo
Listing Photo
Listing Photo
Listing Photo
Listing Photo
Listing Photo
Listing Photo
Listing Photo
Listing Photo
Listing Photo
Listing Photo
Listing Photo
Listing Photo
Listing Photo
Listing Photo
Listing Photo
Listing Photo
Listing Photo
Listing Photo
Listing Photo
Listing Photo
Listing Photo
Listing Photo
Listing Photo
Listing Photo
Listing Photo
Listing Photo
Listing Photo
Listing Photo

MLS #MFRO6400649 Listing courtesy of Florida Realty Investments provided by Stellar MLS.

Similar Listings

$680,000
11222 Rapallo Lane
Windermere
4BR/2BA
| Active
$680,000
8552 Powder Ridge Trail
Windermere
4BR/2BA
| Active
$680,000
13339 Roskin Lane
Windermere
4BR/2BA
| Active
$725,000
17514 Black Rail Street
Windermere
4BR/2BA
| Pending



All listing information is deemed reliable but not guaranteed and should be independently verified through personal inspection by appropriate professionals. Listings displayed on this website may be subject to prior sale or removal from sale; availability of any listing should always be independent verified. Listing information is provided for consumer personal, non-commercial use, solely to identify potential properties for potential purchase; all other use is strictly prohibited and may violate relevant federal and state law. The source of the listing data is as follows: Stellar MLS (updated 4/22/26 5:37 AM) |

Listing Search



Translate Tool

Featured Listings
Windermere Real Estate
$549,000
3 BED
2 BATH
Beautiful two-story single-family home with a pond view in the Ashlin Park neighborhood of Windermere. Open floor plan i... Read More
Windermere Real Estate
$749,000
4 BED
2 BATH
Introducing an EXCEPTIONAL opportunity to own a RENOVATED WATERFRONT POOL residence in the prestigious, GATED community ... Read More
Windermere Real Estate
$1,150,000
4 BED
3 BATH
Step into this stunning 4-bedroom, 3-bathroom pool home nestled on nearly half an acre in the highly desirable Windsor H... Read More
Windermere Real Estate
$770,000
4 BED
3 BATH
Unique opportunity to own a stunning Mediterranean-style home with WATER VIEWS and a PRIVATE COURTYARD, located in the h... Read More
Windermere Real Estate
$1,225,000
4 BED
3 BATH
Modern style blends with Windermere charm. This totally renovated home is located just steps from Lake Bessie in the Tow... Read More
Contact Wendy Morris

407-575-5392

Wendy Morris LLC

Licensed in the State of Florida
BK 3146762
16797 Broadwater Avenue
Winter Garden, Florida 34787

Your privacy is our utmost concern. We will never sell your personal information. Privacy Policy
©2026 wintergardenfl.com - all rights reserved. | Site Map